Porzione di bifamiliare in vendita

Besana In Brianza, Via Don Lorenzo Perosi - Zoccorino
€ 429.000
5 locali 5 locali
355 Mq 355 Mq
3 bagni 3 bagni

Porzione di bifamiliare in vendita

Besana In Brianza, Via Don Lorenzo Perosi - Zoccorino

Descrizione annuncio

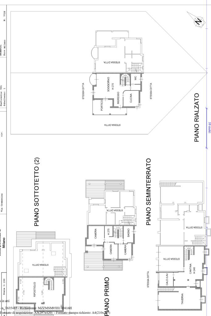
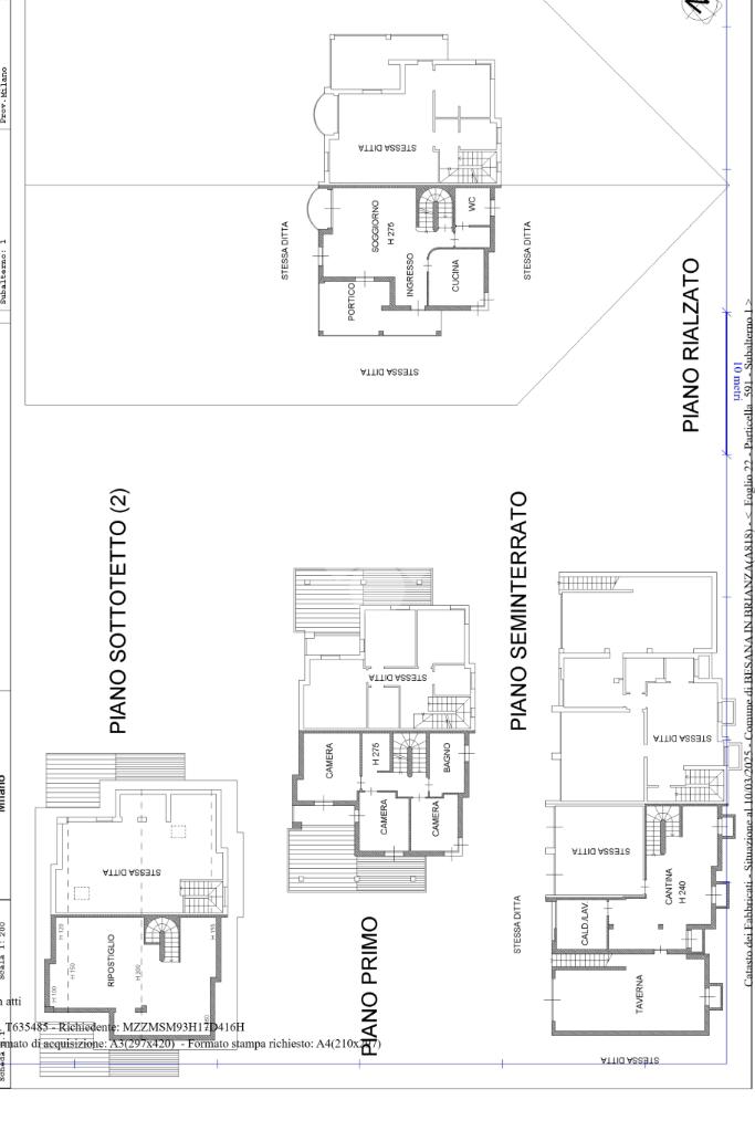
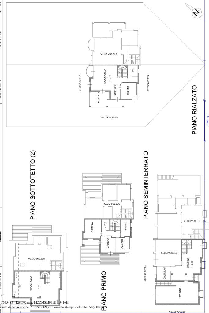
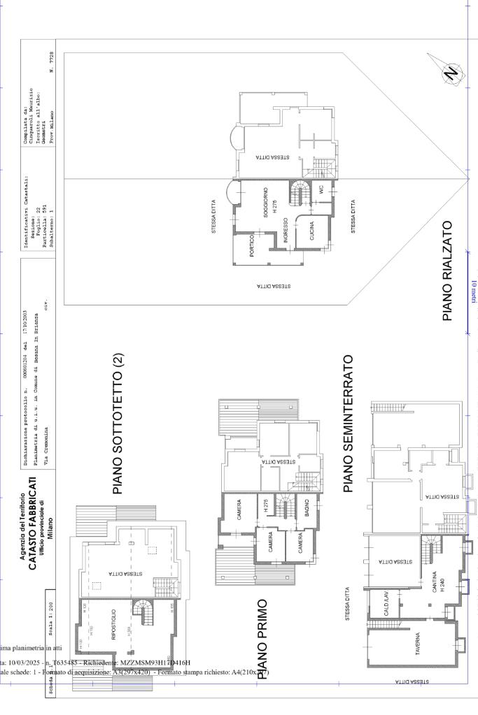
A Besana Brianza, nella frazione di Vergo Zoccorino, al confine con Carate proponiamo in vendita, Porzione di villa Bifamiliare, costruita nel 2003, in posizione panoramica e riservata, situata su strada a fondo chiuso. Libera Subito e senza nessun lavoro da fare.

Ottimamente tenuta, con ampio piano terra, composto da un luminoso soggiorno doppio con uscita sul portico e sul giardino privato, cucina abitabile e bagno di servizio finestrato. Al piano primo, la zona notte offre un'ampia camera matrimoniale con balcone e cabina armadio, altre due camere di cui una con balcone. Ripostiglio e bagno padronale con vasca. Piano sottotetto a rustico di 76 mq, con predisposizone per altro bagno e locali hobby/studio. Al piano seminterrato, troviamo 110 mq. di taverna, un locale caldaia/lavanderia e locale hobby oltre a 37 mq di Box doppio. Dal piano seminterrato si puo' accedere direttamente all'area esterna, avendo una parte fuori terra.

La Villa è dotata di impanto di allarme, doppi vetri e serramenti in legno, termostato su ogni piano e parquet nella zona notte.

Agenzia Immobiliare Tecnocasa Besana in Brianza (MB), al confine con: Carate Brianza (MB) - Monticello - Casatenovo (LC)

Mostra tutto

Nelle vicinanze

Trasporto pubblico Trasporto pubblico
Besana
Besana
2,2 Km
D48/D60 - BESANA B. V.la Raverio Ist. Gandhi/VILLA RAVERIO/Z232+Z242 - BESANA B. Villa Raverio-Matteotti 2-FS
D48/D60 - BESANA B. V.la Raverio Ist. Gandhi/VILLA RAVERIO/Z232+Z242 - BESANA B. Villa Raverio-Matteotti 2-FS
1,4 Km
Trasporto pubblico
2,2 Km
Villa Raverio
Villa Raverio
1,3 Km
Carate-Calò
Carate-Calò
2,7 Km
Scuole Scuole
Scuola Primaria Renzo Pezzani
1,3 Km
Istituto di Istruzione Superiore Mohandas Karamchand Gandhi
1,3 Km
Scuola primaria "Don Beretta"
2,6 Km
Scuole
2,7 Km
Farmacia Farmacia
Farmacia Comunale
1,7 Km
Farmacia Agliate
2,1 Km
Farmacia
2,4 Km
Ospedali Ospedali
Ospedali
2,4 Km
Supermercati Supermercati
Cooperativa di consumo lavoratori della Brianza
1,7 Km
Eurospin
1,9 Km
Iperal Besana Brianza
2,0 Km
MD
2,4 Km
Lidl
2,6 Km
Negozi Negozi
Longoni
2,4 Km
Fantasie di pane
2,7 Km
Bar Bar
Bar
1,3 Km
Bar Tabacchi Suraci Rosetta
2,4 Km
Portici
2,7 Km
Expo Cafè
2,9 Km
Bar Gelateria 5 Frecce
2,9 Km
Ristoranti Ristoranti
Cenacolo dei Pittori
1,4 Km
Trattoria Birot
1,6 Km
Tre Re
1,7 Km
Taverna degli Artisti
1,9 Km
Camp di cent pertigh
1,9 Km
Mostra tutto

Caratteristiche

Rif.:
61032105
Piano:
2 di 2 (Piano su più livelli)
Box:
2
Balconi:
2
Camere da letto:
3
Arredamento:
Assente
Mostra tutto
Prezzo Prezzo
€ 429.000
Rata mutuo Rata mutuo
€ 2.038 / mese
Spese annue Spese annue
€ 0
Proponi il tuo prezzoProponi il tuo prezzo

Classe Energetica

E
E
E
E
E
E
E
E
E
EP globale non rinnovabile:
255.84 kW h/m² anno
EP globale rinnovabile:
0.00 kW h/m² anno
EP invernale del fabbricato:
EP estiva del fabbricato:
Anno di costruzione:
2003
Riscaldamento:
Autonomo
Tipo impianto:
A radiatori
Tipo alimentazione:
Metano

Ti interessa visionare l'immobile?

Fissa un appuntamento  Fissa un appuntamento

Richiedi informazioni

Clicca su Leggi per aprire l'informativa
* Questi campi sono obbligatori

Calcola il tuo mutuo

Semplice e senza impegno
Anticipo

( % )
Mutuo

( % )

pochi semplici passi

inserisci i tuoi dati
Questionario completato
Grazie per aver richiesto un appuntamento senza impegno con un nostro Consulente del Credito e Assicurativo.

Hai inserito correttamente tutti i dati necessari e a breve riceverai una e-mail con un link da convalidare per inviare i tuoi dati.
Affiliato
Studio Sedoni E Co. Srl
Via Vittorio Emanuele , 22 20842 Besana In Brianza (MB)

Il nostro staff


  • Concetta Pizzuto
    Affiliata

  • Simone Sedoni
    Collaboratore

  • Alice Chinaglia
    Collaboratrice

  • Roberta Casiraghi
    Coordinatrice
Via Vittorio Emanuele , 22 20842 Besana In Brianza (MB)
Zona: Besana Brianza
Mostra su mappa
Orari: lunedì-martedì-mercoledì-giovedì-venerdì h. 9.00-12.30/14.30-20.00; sabato h. 9.00-12.30/14.30-17.00.
Affiliato
Studio Sedoni E Co. Srl
Via Vittorio Emanuele , 22 20842 Besana In Brianza (MB)

2026 Tecnocasa Franchising S.p.A. - P. IVA 08365160152 - Via Monte Bianco 60/A 20089 Rozzano (MI). Ogni agenzia ha un proprio titolare ed è autonoma. Privacy policy | Policy utilizzo | Cookie policy